神奈川県藤沢市鵠沼松が岡5丁目
地図を見る
- 小田急江ノ島線「鵠沼海岸」駅 徒歩9分(約670m)
- 小田急江ノ島線「本鵠沼」駅 徒歩11分(約840m)
- 小田急江ノ島線「藤沢」駅 バス11分「熊倉通り」停徒歩3分
- 価格
-
7,680万円
ローンシミュレーション
- 間取り
- 2LDK
- 建物面積
- 102.26㎡
- 土地面積
- 133.10㎡
- 完成時期(築年月)
- 平成29年8月
間取り図 / 区画図

設備・仕様
- システムキッチン
- 浴室に窓
- トイレ2箇所
- 全居室6畳以上
- クローゼット
- 室内洗濯機置場
- 公営水道
- 本下水
- 都市ガス
- バルコニー
セールスポイント
小田急電鉄江ノ島線「鵠沼海岸」駅徒歩9分!屋上バルコニーの備わる2LDK◎
住まいのプロがご紹介!『藤沢市鵠沼松が岡五丁目』の知っておきたい魅力!
●2017年8月築、木造2階建て「2LDK」。
●南東向きのLDKは約22.4帖、対面式キッチンのためご家族との会話が弾みます。
●シューズクロークには上着掛けもあり、ファミリークローゼットとしても利用可能◎
●土間はゆとりある約4.0帖。自転車などを置くことが可能です。
●BBQなどを楽しめる屋上バルコニー付き、江の島を望むことができます。
●屋外シャワー設備有り。
●カースペースに2台駐車可能です(車種による。)
●周辺環境
・そうてつローゼン鵠沼店:徒歩8分(約620m)
外観:【外観】
小田急電鉄江ノ島線「鵠沼海岸」駅まで徒歩9分で、通勤・通学に便利な立地です。
【外観】
小田急電鉄江ノ島線「鵠沼海岸」駅徒歩9分。海を身近に感じられる住環境が魅力。屋上バルコニー付きの「2LDK」の住まい。カースペース2台分有り(車種による)。/2026年3月撮影
リビング:リビング
2026年3月撮影/CG合成により撤去予定の家具等を消去しています
リビング:リビング
2026年3月撮影/CG合成により撤去予定の家具等を消去しています
リビング:リビング
2026年3月撮影/CG合成により撤去予定の家具等を消去しています
キッチン:キッチン
2026年3月撮影/CG合成により撤去予定の家具等を消去しています
キッチン:キッチン(カップボード)
2026年3月撮影/CG合成により撤去予定の家具等を消去しています
収納:パントリー
2026年3月撮影/CG合成により撤去予定の家具等を消去しています
洋室約10.6帖
2026年3月撮影/CG合成により撤去予定の家具等を消去しています
洋室約6.1帖
2026年3月撮影/CG合成により撤去予定の家具等を消去しています
洗面:洗面台(2階)
2026年3月撮影/CG合成により撤去予定の家具等を消去しています
収納:シューズクローク
2026年3月撮影/CG合成により撤去予定の家具等を消去しています
玄関:玄関
2026年3月撮影/CG合成により撤去予定の家具等を消去しています
バルコニー:【バルコニー】
屋上バルコニーは眺望良好で、天気の良い日は江の島を望むことができます。
【バルコニー】
屋上バルコニーは眺望良好で、天気の良い日は江の島を望むことができます。BBQやティータイムなどライフスタイルに合わせてお使いいただけます。/2026年3月撮影
眺望:眺望
【眺望】2026年3月撮影
-

外観:【外観】
小田急電鉄江ノ島線「鵠沼海岸」駅まで徒歩9分で、通勤・通学に便利な立地です。
【外観】
小田急電鉄江ノ島線「鵠沼海岸」駅徒歩9分。海を身近に感じられる住環境が魅力。屋上バルコニー付きの「2LDK」の住まい。カースペース2台分有り(車種による)。/2026年3月撮影
-

リビング:リビング
2026年3月撮影/CG合成により撤去予定の家具等を消去しています
-

リビング:リビング
2026年3月撮影/CG合成により撤去予定の家具等を消去しています
-

リビング:リビング
2026年3月撮影/CG合成により撤去予定の家具等を消去しています
-

キッチン:キッチン
2026年3月撮影/CG合成により撤去予定の家具等を消去しています
-

キッチン:キッチン(カップボード)
2026年3月撮影/CG合成により撤去予定の家具等を消去しています
-

収納:パントリー
2026年3月撮影/CG合成により撤去予定の家具等を消去しています
-

洋室約10.6帖
2026年3月撮影/CG合成により撤去予定の家具等を消去しています
-

洋室約6.1帖
2026年3月撮影/CG合成により撤去予定の家具等を消去しています
-

洗面:洗面台(2階)
2026年3月撮影/CG合成により撤去予定の家具等を消去しています
-

収納:シューズクローク
2026年3月撮影/CG合成により撤去予定の家具等を消去しています
-

玄関:玄関
2026年3月撮影/CG合成により撤去予定の家具等を消去しています
-

バルコニー:【バルコニー】
屋上バルコニーは眺望良好で、天気の良い日は江の島を望むことができます。
【バルコニー】
屋上バルコニーは眺望良好で、天気の良い日は江の島を望むことができます。BBQやティータイムなどライフスタイルに合わせてお使いいただけます。/2026年3月撮影
-

眺望:眺望
【眺望】2026年3月撮影
横浜北営業所
竹内 桂人
Keito Takeuchi
鵠沼海岸まで徒歩19分(約1500m)と海を身近に感じられる立地です。最寄り駅まで徒歩9分なので、通勤・通学がしやすく、プライベートもアクティブに行動できそうです。是非、お気軽にお問い合わせください。
周辺環境
- 通学区情報
-
-
小学校
藤沢市立鵠洋小学校(約320m)
-
中学校
藤沢市立湘洋中学校(約1800m)
- 周辺情報
-
不動産用語集
物件概要
-
物件名
藤沢市鵠沼松が岡五丁目中古戸建
-
価格
7,680万円
-
所在地
神奈川県藤沢市鵠沼松が岡5丁目
-
交通
小田急江ノ島線「鵠沼海岸」駅
徒歩9分(約670m)
小田急江ノ島線「本鵠沼」駅
徒歩11分(約840m)
小田急江ノ島線「藤沢」駅
バス11分「熊倉通り」停徒歩3分
-
建物面積
102.26m²(約30.93坪)
-
土地面積
133.1m²(約40.26坪)(公簿)
-
構造・階数
木造2階建て
-
完成時期(築年月)
平成29年8月
-
間取り
2LDK
-
土地権利
所有権
-
地目
宅地
-
都市計画
市街化区域
-
国土法届出
不要
-
総戸数
1戸
-
用途地域
第一種低層住居専用地域
-
建ぺい率
40%
-
容積率
80%
-
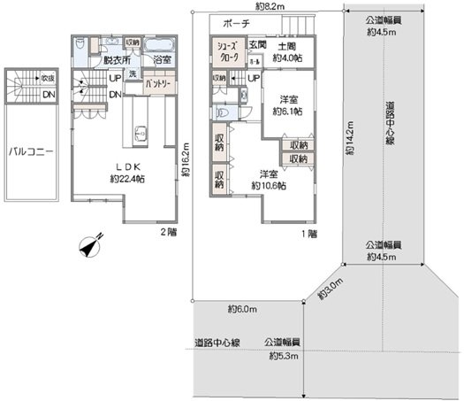
接道状況
接道状況:二方
南東
5.30m
公道
間口6.0m
北東
4.50m
公道
間口14.2m
-
現況
居住中
-
引渡可能時期
相談
-
引渡条件
現況渡し
-
設備・物件の特徴
IHクッキングヒーター
、対面キッチン
、システムキッチン
、浴室に窓
、トイレ2箇所
、LDK20畳以上
、全居室6畳以上
、クローゼット
、パントリー
、シューズインクローク
、室内洗濯機置場
、公営水道
、本下水
、都市ガス
、バルコニー
-
駐車場
有
2台
-
小学校
藤沢市立鵠洋小学校(約320m)
-
中学校
藤沢市立湘洋中学校(約1800m)
-
施工会社
湘栄建設株式会社
-
分譲会社
-
-
設計会社
-
-
備考
建築確認番号:第H29SBC-確00430H号
注意事項:【公法規制】○高さ最高限度有(10m以下)○北側斜線制限○宅地造成及び特定盛土等規制法○鵠沼風致地区
【設備】○上水道:公営水道○下水道:公共下水道○ガス:都市ガス
【備考】○駐車場2台分(車種による制限有り)○掲載写真:2026年3月撮影○室内掲載写真(リビングダイニング・キッチン)は、CG合成により撤去予定の家具等を消去しています○町内会費:1000円/年○引渡し:令和8年9月中旬以降○敷地と道路に高低差あり○約3.0m隅切りに接道
-
取引態様
専任媒介
- 取引条件有効期限:2026/04/21
- 情報更新日:2026/04/07
- 次回更新予定日:2026/04/21
- ※図面と現況が異なる場合は、現況を優先します。
- ※写真に写っている、またはパース(絵)や間取り図に描かれている家具や車などは、特にコメントがない場合、販売価格に含まれません。
- ※完成予想図はいずれも外構、植栽、外観等実際のものとは多少異なることがあります。
- ※掲載物件については掲載期間中に成約済・売却中止になる場合もありますので予めご了承ください。
- ※取引態様の欄で「媒介」とある物件については仲介物件となりますので、価格の他に仲介手数料(及び消費税等)が必要となります。
- ※取引態様の欄で「売主」「代理」とある物件のうち、仲介業者が取引に関与する物件については、価格の他に仲介手数料(及び消費税等)が必要となります。