- 価格
-
1億5,280万円
(想定利回り4.01%)
ローンシミュレーション
- 建物面積
- 167.18㎡
- 土地面積
- 147.91㎡
- 階建て
- 2階建て
この物件は「積水ハウスの賃貸住宅シャーメゾン」です。
- 関連リンク
-
この物件は積水ハウスが施工した物件です。
Made by SEKISUIHOUSE
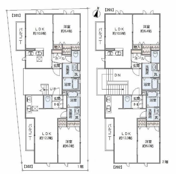
間取り図 / 区画図

設備・仕様
- B/T別室
- 室内洗濯機置場
- 公営水道
- 本下水
- 都市ガス
セールスポイント
【積水ハウス施工】1棟売アパート レイクハイムⅡ
【全4戸満室賃貸中】令和8年3月6日現在
満室時想定賃料収入: 6,132,000円/年
満室時想定利回り:約4.01%
※利回りは、販売価格に対する年間の賃料収入(共益費等を含む)の割合で、公租公課その他該当物件を維持するために必要な費用の控除前のものです。
※賃料収入は、将来にわたって確実に得られることを保証するものではありません。
※想定収入年額は満室時を想定して算出しております。
※想定収入年額はサブリース手数料等控除前のものです。
外観:
外観:
全体区画図:
前面道路含む外観:
前面道路含む外観:
-

外観:
-

外観:
-

全体区画図:
-

前面道路含む外観:
-

前面道路含む外観:
川崎営業所
蓬田 誉
Takashi Yomogita
「洗足池」駅徒歩約2分の好立地!お気軽にお問い合わせください!
積水ハウス・施工物件
200万戸以上の建築実績を物語る、積水ハウスの信頼性。住まいの品質、性能、サービスに対するお客様からの確かな信頼。この物件は、積水ハウスが施工した物件です。
周辺環境
- 通学区情報
-
-
小学校
小池小学校(約330m)
-
中学校
大森第六中学校(約540m)
- 周辺情報
-
-
幼稚園保育園
マミーズエンジェル 上池台保育園(約115m)
-
幼稚園保育園
東京昭和幼稚園(約320m)
-
スーパー
まいばすけっと 洗足池駅前店(約125m)
-
スーパー
トップ 洗足池店(約220m)
-
コンビニ
ファミリーマート 大田洗足池店(約105m)
-
ドラッグストア
くすりセイジョー 洗足池店(約115m)
-
病院
吉村小児科医院(約50m)
-
公園
ねむの木児童公園(約265m)
不動産用語集
物件概要
-
物件名
大田区上池台2丁目 1棟売アパート
-
価格
1億5,280万円
-
想定利回り
4.01%
-
投資用情報
満室時想定賃料(年間):6,132,000円
現行利回り:4.01%
現行賃料(年間):6,132,000円
-
賃貸状況
全部賃貸中
-
物件用途
-
-
所在地
東京都大田区上池台2丁目
-
交通
東急池上線「洗足池」駅
徒歩2分(約140m)
-
建物面積
167.18m²(約50.57坪)
-
土地面積
147.91m²(約44.74坪)(実測)
私道負担あり:59.12m²
(1.00/1.00)
-
構造・階数
軽量鉄骨2階建て
-
完成時期(築年月)
平成22年12月
-
間取り
1LDK×4戸
-
専有面積
41m²
-
土地権利
所有権
-
地目
宅地
-
都市計画
市街化区域
-
国土法届出
不要
-
用途地域
第一種中高層住居専用地域
/ 近隣商業地域
-
建ぺい率
60% / 80%
-
容積率
160% / 200%
-
接道状況
北
4.00m
私道
間口8.9m
西
4.00m
私道
間口18.3m
-
現況
賃貸中(全部)
-
引渡可能時期
相談
-
設備・物件の特徴
B/T別室
、室内洗濯機置場
、公営水道
、本下水
、都市ガス
-
駐車場
無
-
小学校
小池小学校(約330m)
-
中学校
大森第六中学校(約540m)
-
施工会社
積水ハウス株式会社
-
分譲会社
-
-
設計会社
-
-
備考
注意事項:※確定測量済み
※公簿面積207.05㎡(約62.63坪)→公簿面積には、私道負担部分約59.12㎡・隅切り部分約1.08㎡を含みます
※積水ハウスシャーメゾンPM東京㈱にて一括借上げ中
※角地緩和適用(担当へご確認ください)
※前面道路により容積率が200%→160%に制限されます
※角地につき、隅切り部分約2.0m接道
※掲載写真:2026/3
-
取引態様
媒介
- 取引条件有効期限:2026/04/07
- 情報更新日:2026/01/29
- 次回更新予定日:2026/04/07
- ※図面と現況が異なる場合は、現況を優先します。
- ※写真に写っている、またはパース(絵)や間取り図に描かれている家具や車などは、特にコメントがない場合、販売価格に含まれません。
- ※完成予想図はいずれも外構、植栽、外観等実際のものとは多少異なることがあります。
- ※掲載物件については掲載期間中に成約済・売却中止になる場合もありますので予めご了承ください。
- ※取引態様の欄で「媒介」とある物件については仲介物件となりますので、価格の他に仲介手数料(及び消費税等)が必要となります。
- ※取引態様の欄で「売主」「代理」とある物件のうち、仲介業者が取引に関与する物件については、価格の他に仲介手数料(及び消費税等)が必要となります。
- ※想定利回り(%)=満室時年間賃料総額(家賃収入×12ヶ月)÷物件購入価格×100。当サイトの想定利回りとは上記計算方法で算出する単純利回りで、公租公課、管理費、その他当該物件を維持するために必要な費用の控除前のものです。
- ※この利回りは将来にわたって保証されるものではありません。