神奈川県相模原市南区上鶴間1丁目
地図を見る
- 小田急小田原線「相模大野」駅 徒歩14分(約1100m)
- 小田急江ノ島線「東林間」駅 徒歩14分(約1100m)
- 価格
-
2億5,700万円 (税込)
(想定利回り7%)
ローンシミュレーション
- 建物面積
- 1,215.14㎡
- 土地面積
- 637.03㎡
- 階建て
- 4階建て
セールスポイント
満室時想定表面利回り7.0%、住戸部分満室稼働中
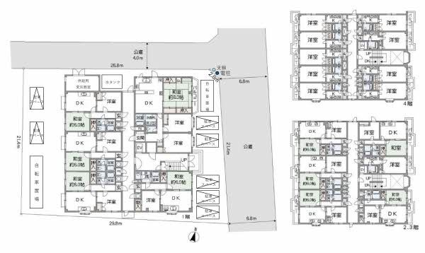
・土地面積:637.03㎡(約192.7坪)
・北東・北西角地
・北東側公道:幅員約6.8m、北西側公道幅員約4.0m
・快速急行停車駅 小田急線「相模大野」駅 徒歩14分
・徒歩5分圏内にコンビニやスーパーがございます
その他:
その他:
その他:
その他:
その他:
その他:
その他:
その他:
その他:
その他:
-

その他:
-

その他:
-

その他:
-

その他:
-

その他:
-

その他:
-

その他:
-

その他:
-

その他:
-

その他:
東京西営業所
徳田 典嗣
Noritsugu Tokuda
お気軽にお問合せ下さい。
不動産用語集
物件概要
-
物件名
Y&Eパレス
-
価格
2億5,700万円
(税込)
-
想定利回り
7%
-
投資用情報
満室時想定賃料(年間):18,053,568円
現行賃料(月額):マンション住戸:26室/26室 満室稼働中、駐車場:5/7台 稼働中
現行利回り:6.94%
現行賃料(年間):17,842,368円
-
賃貸状況
一部賃貸中
-
物件用途
その他
、
一戸建
、
マンション
-
所在地
神奈川県相模原市南区上鶴間1丁目
-
交通
小田急小田原線「相模大野」駅
徒歩14分(約1100m)
小田急江ノ島線「東林間」駅
徒歩14分(約1100m)
-
建物面積
1,215.14m²(約367.57坪)
-
土地面積
637.03m²(約192.7坪)(公簿)
-
構造・階数
鉄骨4階建て
-
完成時期(築年月)
昭和63年3月
-
間取り
1K×11、2DK×14、3DK×1
-
専有面積
23.63m²~94.54m²
-
土地権利
所有権
-
地目
宅地
-
都市計画
市街化区域
-
国土法届出
不要
-
用途地域
準工業地域
-
建ぺい率
60%
-
容積率
200%
-
接道状況
北東
6.80m
公道
間口21.4m
北西
4.00m
公道
間口26.8m
-
現況
賃貸中(一部)
-
引渡可能時期
即日
-
引渡条件
現況渡し
-
設備・物件の特徴
エレベーター
、公営水道
、個別LPG
-
駐車場
無
-
小学校
-
-
中学校
-
-
施工会社
-
-
分譲会社
-
-
設計会社
-
-
備考
-
-
取引態様
媒介
- 取引条件有効期限:2026/02/12
- 情報更新日:2026/01/29
- 次回更新予定日:2026/02/12
- ※図面と現況が異なる場合は、現況を優先します。
- ※写真に写っている、またはパース(絵)や間取り図に描かれている家具や車などは、特にコメントがない場合、販売価格に含まれません。
- ※完成予想図はいずれも外構、植栽、外観等実際のものとは多少異なることがあります。
- ※掲載物件については掲載期間中に成約済・売却中止になる場合もありますので予めご了承ください。
- ※取引態様の欄で「媒介」とある物件については仲介物件となりますので、価格の他に仲介手数料(及び消費税等)が必要となります。
- ※取引態様の欄で「売主」「代理」とある物件のうち、仲介業者が取引に関与する物件については、価格の他に仲介手数料(及び消費税等)が必要となります。
- ※想定利回り(%)=満室時年間賃料総額(家賃収入×12ヶ月)÷物件購入価格×100。当サイトの想定利回りとは上記計算方法で算出する単純利回りで、公租公課、管理費、その他当該物件を維持するために必要な費用の控除前のものです。
- ※この利回りは将来にわたって保証されるものではありません。