神奈川県三浦市初声町下宮田
地図を見る
- 京急久里浜線「三崎口」駅 徒歩11分(約870m)
- 価格
-
5,190万円
ローンシミュレーション
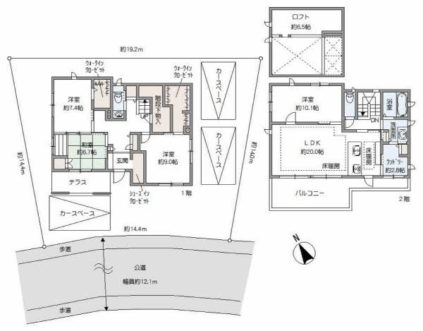
- 間取り
- 4LDK+2WIC+ロフト
- 建物面積
- 148.16㎡
- 土地面積
- 231.08㎡
- 完成時期(築年月)
- 平成26年3月
-
この物件は優良ストック住宅推進協議会の定義を満たす「スムストック」です。
- 総額
-
5,190万円
- 建物価格
3,475万円
、
- 土地価格
1,715万円
積水ハウスのスムストックとは?
この物件は積水ハウスが施工した物件です。
Made by SEKISUIHOUSE
間取り図 / 区画図

設備・仕様
- アイコン
LDK
20畳以上
- アイコン
対面式
キッチン
- アイコン
南側道路面す
- アイコン
リビング
吹抜け
- アイコン
床暖房
- 2階リビング
- ロフト
- システムキッチン
- 浴室に窓
- トイレ2ヶ所
- テラス
- ウォークインクロゼット
- ウォークインシューズクロゼット
- 室内物干し
- 室内洗濯機置場
- 前道6m以上
- 南面バルコニー
セールスポイント
☆積水ハウス㈱施工の軽量鉄骨造2階建
☆京急ニュータウン三浦海岸分譲地内
☆オール電化住宅
太陽光発電システム・エネファームあり
☆LD上部吹き抜けの為、開放感があります
☆約6.5帖のロフトあり
☆LD床暖房あり
☆2階洋室を仕切り、5LDKとしても利用可能
外観:
リビング:
リビング:
リビング:
リビング:
リビング:
キッチン:
キッチン:
その他画像:
バスルーム:
洗面所:
トイレ:
トイレ:
トイレ:
洋室:
2階洋室約5.0帖
洋室:
1階洋室約9.0帖
和室:
1階洋室約7.4帖・和室6.7帖
シューズインクローゼット:
シューズインクローゼット:
収納:
ロフト
収納:
ロフト
バルコニー:
玄関:
玄関:
その他画像:
その他画像:
その他画像:
その他画像:
その他画像:
外観:
外観:
-

外観:
-

リビング:
-

リビング:
-

リビング:
-

リビング:
-

リビング:
-

キッチン:
-

キッチン:
-

その他画像:
-

バスルーム:
-

洗面所:
-

トイレ:
-

トイレ:
-

トイレ:
-

洋室:
2階洋室約5.0帖
-

洋室:
1階洋室約9.0帖
-

和室:
1階洋室約7.4帖・和室6.7帖
-

シューズインクローゼット:
-

シューズインクローゼット:
-

収納:
ロフト
-

収納:
ロフト
-

バルコニー:
-

玄関:
-

玄関:
-

その他画像:
-

その他画像:
-

その他画像:
-

その他画像:
-

その他画像:
-

外観:
-

外観:
横浜営業所
大谷 拓矢
Takuya Otani
お気軽にお問い合わせください!
積水ハウス・施工物件
200万戸以上の建築実績を物語る、積水ハウスの信頼性。住まいの品質、性能、サービスに対するお客様からの確かな信頼。この物件は、積水ハウスが施工した物件です。
- 住まいの安心が継続できる長期住宅保証システム
-
有償点検(必要により有償補修)を行う前提で、ユートラス(再保証)システムが利用できます
有償点検(必要により有償補修)を行なうことにより、構造躯体(基礎・柱・梁・屋根)および防水(雨水の侵入を防止する部分)を10年ごとに繰り返し延長保証が可能な保証システムをご用意しています。
- ※1 新築時より「20年保証(雨水の浸水を防止する部分については10年プラス10年延長)」を実施しています。
ただし、構造躯体については10年目の無料点検、雨水の侵入を防止する部分については10年目の無料点検および、積水ハウスが必要と判断した補修工事(有償工事を含む)を行うことが前提となります。また「20年保証」は2000年4月1日以降に積水ハウスと請負契約いただいた場合に限ります。
保証期間は建築時期によって異なりますので、詳しくは担当営業にお問い合わせください。
- ※2 ユートラス保証の保証期間は10年間です。(有償点検、必要な有償補修を行うことで、10年ごとに延長できます)
周辺環境
- 通学区情報
-
-
小学校
三浦市立初声小学校(約1160m)
-
中学校
三浦市立初声中学校(約1200m)
- 周辺情報
-
-
教育施設
上宮田小羊保育園(約1300m)
-
スーパー
ヤオコー三浦初声店(約1390m)
-
コンビニ
セブンイレブン京急ST三崎口店(約850m)
-
その他商業施設
クリエイトエス・ディー三浦初声店(約1400m)
-
公園
沓形公園(約100m)
不動産用語集
物件概要
-
物件名
三浦市初声町下宮田
-
価格
5,190万円
-
所在地
神奈川県三浦市初声町下宮田
-
交通
京急久里浜線「三崎口」駅
徒歩11分(約870m)
-
建物面積
148.16m²(約44.81坪)
-
土地面積
231.08m²(約69.9坪)(公簿)
-
構造・階数
軽量鉄骨造2階建て
-
完成時期(築年月)
平成26年3月
-
間取り
4LDK+2WIC+ロフト
-
土地権利
所有権
-
地目
宅地
-
都市計画
市街化区域
-
国土法届出
不要
-
総戸数
-
-
用途地域
第一種低層住居専用地域
-
建ぺい率
40%
-
容積率
80%
-
接道状況
接道状況:一方
南西
12.10m
公道
間口14.4m
-
現況
空
-
引渡可能時期
相談
-
設備・物件の特徴
LDK20畳以上
、対面式キッチン
、南側道路面す
、2階リビング
、リビング吹抜け
、ロフト
、システムキッチン
、浴室に窓
、トイレ2ヶ所
、床暖房
、テラス
、ウォークインクロゼット
、ウォークインシューズクロゼット
、室内物干し
、室内洗濯機置場
、前道6m以上
、南面バルコニー
-
駐車場
有
3台
-
小学校
三浦市立初声小学校(約1160m)
-
中学校
三浦市立初声中学校(約1200m)
-
施工会社
積水ハウス株式会社
-
分譲会社
-
-
設計会社
-
-
備考
注意事項:※南東側隣地が都市計画道路(三浦縦貫道路)として計画決定しています
※オール電化住宅の為、都市ガスの引込はありません
※写真撮影年月:令和7年9月
※法第22条指定
※建物高さ制限最高10m以下
※京急ニュータウン三浦海岸建築協定
-
取引態様
専任媒介
- 取引条件有効期限:2025/12/28
- 情報更新日:2025/12/14
- 次回更新予定日:2025/12/28
- ※図面と現況が異なる場合は、現況を優先します。
- ※写真に写っている、またはパース(絵)や間取り図に描かれている家具や車などは、特にコメントがない場合、販売価格に含まれません。
- ※完成予想図はいずれも外構、植栽、外観等実際のものとは多少異なることがあります。
- ※掲載物件については掲載期間中に成約済・売却中止になる場合もありますので予めご了承ください。
- ※取引態様の欄で「媒介」とある物件については仲介物件となりますので、価格の他に仲介手数料(及び消費税等)が必要となります。
- ※取引態様の欄で「売主」「代理」とある物件のうち、仲介業者が取引に関与する物件については、価格の他に仲介手数料(及び消費税等)が必要となります。