東京都世田谷区代田5丁目
地図を見る
- 京王井の頭線「新代田」駅 徒歩1分(約35m)
- 京王井の頭線「下北沢」駅 徒歩7分(約515m)
- 小田急小田原線「世田谷代田」駅 徒歩7分(約550m)
- 価格
-
9,780万円
ローンシミュレーション
- 土地面積
- 71.38㎡
- 坪数
- 約21.59坪
- 建築条件
- 建築条件付
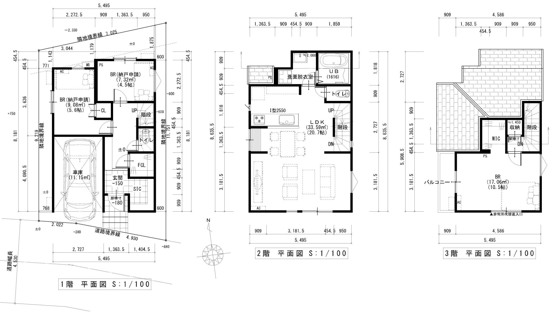
間取り図 / 区画図

建物プラン例
※掲載されている建物プラン例は一例であり、プランの採用可否は土地購入者の任意です。

価格:27,600,000円(税込)※
外構・建築確認申請費用含む:延床:110.63㎡/1階:45.18㎡(車庫11.15㎡含む)/2階:44.14㎡/3階:21.31㎡
構造:木造在来軸組工法
※参考プランは一例です。プランはお客様が自由に決定できます。
セールスポイント
◆建築条件付き。 ☆建物参考プラン有。(詳細はお問い合わせください)
☆南側接道:幅員約4.5m・接道約6.9m☆京王井の頭線「新代田」駅 徒歩1分☆整形地
外観:2026年2月撮影
外観:2026年2月撮影
外観:2026年2月撮影
前面道路含む外観:2026年2月撮影
前面道路含む外観:2026年2月撮影
建物プラン例 (間取り図):価格:27,600,000円(税込)※
外構・建築確認申請費用含む
延床:110.63㎡/1階:45.18㎡(車庫11.15㎡含む)/2階:44.14㎡/3階:21.31㎡
構造:木造在来軸組工法
※参考プランは一例です。プランはお客様が自由に決定できます。
東京南営業所
久保 一矩
Ichiki Kubo
ご質問やご相談がございましたら、ぜひお気軽にお問い合わせください。
周辺環境
GoogleMap
ストリートビュー
※GoogleMAPストリートビュー非対応の地域では場所が異なる場合がございます。
また、向き等により物件が正面にないケースや撮影日時の関係で物件や周辺環境が現状と異なる場合がございますので、予めご了承ください。
不動産用語集
物件概要
- 取引条件有効期限:2026/05/12
- 情報更新日:2026/04/28
- 次回更新予定日:2026/05/12
- ※図面と現況が異なる場合は、現況を優先します。
- ※写真に写っている、またはパース(絵)や間取り図に描かれている家具や車などは、特にコメントがない場合、販売価格に含まれません。
- ※完成予想図はいずれも外構、植栽、外観等実際のものとは多少異なることがあります。
- ※掲載物件については掲載期間中に成約済・売却中止になる場合もありますので予めご了承ください。
- ※取引態様の欄で「媒介」とある物件については仲介物件となりますので、価格の他に仲介手数料(及び消費税等)が必要となります。
- ※取引態様の欄で「売主」「代理」とある物件のうち、仲介業者が取引に関与する物件については、価格の他に仲介手数料(及び消費税等)が必要となります。
- ※「建築条件付」とは、土地売買契約締結後3ヶ月以内に売主または売主の指定する建設業者との間で建築請負契約を締結して頂くことが契約条件となります。土地売買契約後ただちに建築設計の協議をして頂きますが、期限までにこの請負契約が成立しない場合には、土地売買契約は解除され、売主は土地代金(申込証拠金・手付金等を含む)を全額無条件で返還し、土地購入者はその土地を原状回復の上、売主に引き渡して頂く必要があります。
- ※掲載されている建物プラン例は一例であり、プランの採用可否は土地購入者の任意です。