神奈川県足柄上郡松田町松田惣領
地図を見る
- 小田急小田原線「新松田」駅 徒歩7分(約520m)
- JR御殿場線「松田」駅 徒歩7分(約500m)
- 価格
-
2,350万円
ローンシミュレーション
- 間取り
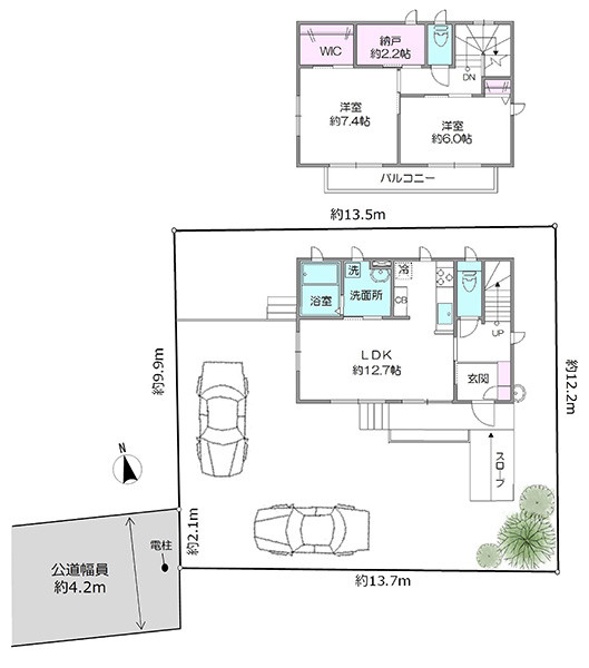
- 2LDK+S(納戸)+WIC
- 建物面積
- 76.5㎡
- 土地面積
- 166.01㎡
- 完成時期(築年月)
- 平成22年11月
-
この物件は優良ストック住宅推進協議会の定義を満たす「スムストック」です。
- 総額
-
2,350万円
- 建物価格
1,007万円
、
- 土地価格
1,343万円
積水ハウスのスムストックとは?
この物件は積水ハウスが施工した物件です。
Made by SEKISUIHOUSE
間取り図 / 区画図

設備・仕様
- アイコン
駅徒歩
10分以内
- アイコン
小学校徒歩
5分以内
- アイコン
駐車2台可
- アイコン
オール電化
- 2沿線利用可
- 中学校徒歩10分以内
- 土地50坪以上
- コンビニ徒歩10分以内
- 浴室に窓
- トイレ2ヶ所
- 全居室フローリング
- 全居室6畳以上
- 南面バルコニー
セールスポイント
【積水ハウス施工】松田町松田惣領スムストック
◇積水ハウス(株)施工~軽量鉄骨造2階建~
◇全居室南向き
◇2路線2駅利用可能
◇オール電化住宅
◇太陽光パネル約3.04kw搭載
◇2階にはWICと納戸(約2.2帖)付
◇カースペース2台分あり(※車種による)
◇玄関前にはスロープあり
◇浴室暖房乾燥機付き
◇スムストック専用瑕疵保険付保対象物件
\スムストックのおすすめポイント/
(1)「新耐震基準」レベルの耐震性を保持しています。
(2)新築時~現在に至るまでの住宅履歴(点検・補修)を管理・蓄積しています。
(3)50年以上のメンテナンスプログラムに対応。住宅購入後もそのまま引き継ぐことができます。
【スムストック専用瑕疵保険】
・保険期間:5年間
・保険金額:1住宅当たり1,000万円
・範囲:構造耐力上主要な部分および雨水の侵入を防止する部分および給排水管路・給排水設備・電気設備・ガス設備
【LIFE INFORMATION】
■松田小学校…約170m
■松田中学校…約500m
■セブンイレブン小田急新松田店…約500m
■クリエイトSD大井松田店…約120m
■松田郵便局…約190m
■佐藤内科医院…約480m
■松田さくら保育園…約580m
■松田町役場…約720m
外観:
リビング:※リビング写真はCG合成により撤去予定の家具等を消去しています。
その他画像:薬局が徒歩約2分です!
その他画像:
藤沢営業所
軸丸 陽仁
Akihito Jikumaru
是非お気軽にお問い合わせください!
積水ハウス・施工物件
200万戸以上の建築実績を物語る、積水ハウスの信頼性。住まいの品質、性能、サービスに対するお客様からの確かな信頼。この物件は、積水ハウスが施工した物件です。
- 住まいの安心が継続できる長期住宅保証システム
-
有償点検(必要により有償補修)を行う前提で、ユートラス(再保証)システムが利用できます
有償点検(必要により有償補修)を行なうことにより、構造躯体(基礎・柱・梁・屋根)および防水(雨水の侵入を防止する部分)を10年ごとに繰り返し延長保証が可能な保証システムをご用意しています。
- ※1 新築時より「20年保証(雨水の浸水を防止する部分については10年プラス10年延長)」を実施しています。
ただし、構造躯体については10年目の無料点検、雨水の侵入を防止する部分については10年目の無料点検および、積水ハウスが必要と判断した補修工事(有償工事を含む)を行うことが前提となります。また「20年保証」は2000年4月1日以降に積水ハウスと請負契約いただいた場合に限ります。
保証期間は建築時期によって異なりますので、詳しくは担当営業にお問い合わせください。
- ※2 ユートラス保証の保証期間は10年間です。(有償点検、必要な有償補修を行うことで、10年ごとに延長できます)
周辺環境
- 通学区情報
-
-
小学校
松田小学校(約170m)
-
中学校
松田中学校(約500m)
- 周辺情報
-
-
コンビニ
セブンイレブン小田急新松田店(約500m)
-
その他商業施設
クリエイトSD大井松田店(約120m)
-
公共、文化施設
松田郵便局(約190m)
-
医療施設
佐藤内科医院(約480m)
-
教育施設
松田さくら保育園(約580m)
-
公共、文化施設
松田町役場(約720m)
不動産用語集
物件概要
-
物件名
松田町松田惣領スムストック
-
価格
2,350万円
-
所在地
神奈川県足柄上郡松田町松田惣領
-
交通
小田急小田原線「新松田」駅
徒歩7分(約520m)
JR御殿場線「松田」駅
徒歩7分(約500m)
-
建物面積
76.5m²(約23.14坪)
-
土地面積
166.01m²(約50.21坪)(公簿)
-
構造・階数
軽量鉄骨造2階建て
-
完成時期(築年月)
平成22年11月
-
間取り
2LDK+S(納戸)+WIC
-
土地権利
所有権
-
地目
宅地
-
都市計画
市街化区域
-
国土法届出
不要
-
総戸数
1戸
-
用途地域
第一種住居地域
-
建ぺい率
60%
-
容積率
168%
-
接道状況
接道状況:一方
西
4.20m
公道
間口2.1m
-
現況
居住中
-
引渡可能時期
相談
-
引渡条件
現況渡し
-
設備・物件の特徴
2沿線利用可
、駅徒歩10分以内
、小学校徒歩5分以内
、中学校徒歩10分以内
、土地50坪以上
、駐車2台可
、コンビニ徒歩10分以内
、浴室に窓
、トイレ2ヶ所
、オール電化
、全居室フローリング
、全居室6畳以上
、南面バルコニー
-
駐車場
有
2台
※車種による
-
小学校
松田小学校(約170m)
-
中学校
松田中学校(約500m)
-
施工会社
積水ハウス株式会社
-
分譲会社
-
-
設計会社
-
-
備考
注意事項:・建築基準法第22条区域
・ガス:個別プロパン/汚水・雑排水:公共下水/飲用水:公営水道
・容積率は前面道路により200%から168%に制限されます。
・図面と現況が異なる場合は、現況を優先させて頂きます。
・前面道路給水管は共有管です。敷地内引込管含め、将来的にやり替え等発生した場合は、費用が発生する可能性があります。
・汚水、雑排水は東側隣地を経由して放流されております。
・リビング写真はCG合成により撤去予定の家具等を消去しています。
・全掲載写真(2025年9月撮影)
-
取引態様
専任媒介
- 取引条件有効期限:2025/10/27
- 情報更新日:2025/10/13
- 次回更新予定日:2025/10/27
- ※図面と現況が異なる場合は、現況を優先します。
- ※写真に写っている、またはパース(絵)や間取り図に描かれている家具や車などは、特にコメントがない場合、販売価格に含まれません。
- ※完成予想図はいずれも外構、植栽、外観等実際のものとは多少異なることがあります。
- ※掲載物件については掲載期間中に成約済・売却中止になる場合もありますので予めご了承ください。
- ※取引態様の欄で「媒介」とある物件については仲介物件となりますので、価格の他に仲介手数料(及び消費税等)が必要となります。
- ※取引態様の欄で「売主」「代理」とある物件のうち、仲介業者が取引に関与する物件については、価格の他に仲介手数料(及び消費税等)が必要となります。