- 価格
-
6,180万円
ローンシミュレーション
- 間取り
- 3LDK
- 建物面積
- 84.5㎡
- 土地面積
- 106.84㎡
- 完成時期(築年月)
- 平成13年10月
-
この物件は優良ストック住宅推進協議会の定義を満たす「スムストック」です。
- 総額
-
6,180万円
- 建物価格
352万円
、
- 土地価格
5,828万円
積水ハウスのスムストックとは?
この物件は積水ハウスが施工した物件です。
Made by SEKISUIHOUSE
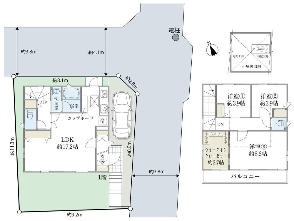
間取り図 / 区画図

設備・仕様
- 浄水器
- 食器洗浄乾燥機
- システムキッチン
- モニタ付インターホン
- 浴室に窓
- 温水洗浄便座
- トイレ2箇所
- 電気
- 公営水道
- 本下水
- 都市ガス
- 南面バルコニー
セールスポイント
京王電鉄京王線「柴崎」駅まで徒歩11分
■積水ハウス株式会社施工物件
■シャーウッドシリーズを内外装フルリノベーション!(2026年1月末完了済)
■角地物件!
■ウォークインクローゼット、屋根裏収納あり
外観:外観
【調布市佐須町四丁目】
積水ハウス施工のシャーウッドシリーズ「3LDK」。2026年1月末、内外装フルリノベーション完了済です。気持ちよく新生活をスタートしていただけます。/2026年1月撮影
リビング:LDK
リビング:LDK
室内:洋室①
室内:洋室②
室内:ウォークインクローゼット
室内:洋室③
キッチン:キッチン
キッチン:キッチン
バス:バス
洗面:洗面
その他:
バルコニー:バルコニー
玄関:玄関
玄関:玄関
その他:ホール
外観:外観
前面道路含む外観:前面道路含む現地写真
【前面道路含む現地写真】
主に戸建てが建ち並ぶ第一種低層住居専用地域内に立地。閑静な住宅街で、穏やかな暮らしを満喫できます。/2025年10月撮影
前面道路含む外観:前面道路含む現地写真
【前面道路含む現地写真/東側】
京王線「柴崎」駅まで徒歩11分。コンビニ・スーパーや小中学校が徒歩10分圏内と、利便性の高い立地です。/2025年10月撮影
-

外観:外観
【調布市佐須町四丁目】
積水ハウス施工のシャーウッドシリーズ「3LDK」。2026年1月末、内外装フルリノベーション完了済です。気持ちよく新生活をスタートしていただけます。/2026年1月撮影
-

リビング:LDK
-

リビング:LDK
-

室内:洋室①
-

室内:洋室②
-

室内:ウォークインクローゼット
-

室内:洋室③
-

キッチン:キッチン
-

キッチン:キッチン
-

バス:バス
-

洗面:洗面
-

その他:
-

バルコニー:バルコニー
-

玄関:玄関
-

玄関:玄関
-

その他:ホール
-

外観:外観
-

前面道路含む外観:前面道路含む現地写真
【前面道路含む現地写真】
主に戸建てが建ち並ぶ第一種低層住居専用地域内に立地。閑静な住宅街で、穏やかな暮らしを満喫できます。/2025年10月撮影
-

前面道路含む外観:前面道路含む現地写真
【前面道路含む現地写真/東側】
京王線「柴崎」駅まで徒歩11分。コンビニ・スーパーや小中学校が徒歩10分圏内と、利便性の高い立地です。/2025年10月撮影
東京西営業所
小田川 彩
Aya Odagawa
お気軽にお問い合わせください!
積水ハウス・施工物件
200万戸以上の建築実績を物語る、積水ハウスの信頼性。住まいの品質、性能、サービスに対するお客様からの確かな信頼。この物件は、積水ハウスが施工した物件です。
- 住まいの安心が継続できる長期住宅保証システム
-
有償点検(必要により有償補修)を行う前提で、ユートラス(再保証)システムが利用できます
有償点検(必要により有償補修)を行なうことにより、構造躯体(基礎・柱・梁・屋根)および防水(雨水の侵入を防止する部分)を10年ごとに繰り返し延長保証が可能な保証システムをご用意しています。
- ※1 新築時より「20年保証(雨水の浸水を防止する部分については10年プラス10年延長)」を実施しています。
ただし、構造躯体については10年目の無料点検、雨水の侵入を防止する部分については10年目の無料点検および、積水ハウスが必要と判断した補修工事(有償工事を含む)を行うことが前提となります。また「20年保証」は2000年4月1日以降に積水ハウスと請負契約いただいた場合に限ります。
保証期間は建築時期によって異なりますので、詳しくは担当営業にお問い合わせください。
- ※2 ユートラス保証の保証期間は10年間です。(有償点検、必要な有償補修を行うことで、10年ごとに延長できます)
周辺環境
- 通学区情報
-
-
小学校
調布市立柏野小学校(約600m)
-
中学校
調布市立第七中学校(約350m)
- 周辺情報
-
-
コンビニ
セブンイレブン調布柴崎1丁目店(約450m)
-
スーパー
まいばすけっと柴崎駅北店(約650m)
-
郵便局
調布郵便局(約700m)
-
銀行
ゆうちょ銀行調布店(約700m)
-
図書館
調布市立図書館佐須分館(約450m)
GoogleMap
ストリートビュー
※GoogleMAPストリートビュー非対応の地域では場所が異なる場合がございます。
また、向き等により物件が正面にないケースや撮影日時の関係で物件や周辺環境が現状と異なる場合がございますので、予めご了承ください。
不動産用語集
物件概要
-
物件名
調布市佐須町四丁目
-
価格
6,180万円
-
所在地
東京都調布市佐須町4丁目
-
交通
京王線「柴崎」駅
徒歩11分(約880m)
-
建物面積
84.5m²(約25.56坪)
-
土地面積
106.84m²(約32.31坪)(公簿)
-
構造・階数
木造2階建て
-
完成時期(築年月)
平成13年10月
-
間取り
3LDK
-
土地権利
所有権
-
地目
宅地
-
都市計画
市街化区域
-
国土法届出
不要
-
総戸数
-
-
用途地域
第一種低層住居専用地域
-
建ぺい率
40%
-
容積率
80%
-
接道状況
接道状況:二方
北
3.80m
公道
間口8.1m
東
3.80m
公道
間口8.9m
-
現況
空
-
引渡可能時期
即日
-
設備・物件の特徴
浄水器
、食器洗浄乾燥機
、システムキッチン
、モニタ付インターホン
、浴室に窓
、温水洗浄便座
、トイレ2箇所
、LDK15畳以上
、ウォークインクローゼット
、全居室収納
、電気
、公営水道
、本下水
、都市ガス
、南面バルコニー
-
駐車場
駐車場あり
〈カースペース1台分〉
-
小学校
調布市立柏野小学校(約600m)
-
中学校
調布市立第七中学校(約350m)
-
施工会社
積水ハウス株式会社
-
分譲会社
-
-
設計会社
-
-
備考
建築確認番号:第128号
注意事項:※角地につき、建ぺい率が40%から50%に緩和されます。
※セットバック済み。
※別途隅切部分約2.8m接道。
※物件撮影日:2025年10月
-
取引態様
専任媒介
- 取引条件有効期限:2026/03/15
- 情報更新日:2026/01/29
- 次回更新予定日:2026/03/15
- ※図面と現況が異なる場合は、現況を優先します。
- ※写真に写っている、またはパース(絵)や間取り図に描かれている家具や車などは、特にコメントがない場合、販売価格に含まれません。
- ※完成予想図はいずれも外構、植栽、外観等実際のものとは多少異なることがあります。
- ※掲載物件については掲載期間中に成約済・売却中止になる場合もありますので予めご了承ください。
- ※取引態様の欄で「媒介」とある物件については仲介物件となりますので、価格の他に仲介手数料(及び消費税等)が必要となります。
- ※取引態様の欄で「売主」「代理」とある物件のうち、仲介業者が取引に関与する物件については、価格の他に仲介手数料(及び消費税等)が必要となります。