SUMU SITE SUMU LIFE SEKISUI HOUSE GROUPE SharMaison MAST MAST CLUB 積水ハウス不動産 積水ハウスリフォームグループ シャーメゾンライフクラブ シャーメゾンライフPOINT GRANDE MAISON SumuStock SEKISUI HOUSE SumuStock 瑕疵保険 瑕疵保険 インスペクション インスペクション フラット35 history fav search mypage mypage photo tel 外部サイト list mail layout square metre access present house mansion land biz rent eSearch sell panorama 積水ハウス不動産東京 積水ハウス不動産東京株式会社 積水ハウス不動産東北 積水ハウス不動産東北株式会社 積水ハウス不動産中部 積水ハウス不動産中部株式会社 積水ハウス不動産関西 積水ハウス不動産関西株式会社 積水ハウス不動産中国四国 積水ハウス不動産中国四国株式会社 積水ハウス不動産九州 積水ハウス不動産九州株式会社 積水ハウス不動産東京株式会社 積水ハウス不動産九州株式会社 積水ハウス不動産東北株式会社 積水ハウス不動産中部株式会社 積水ハウス不動産関西株式会社 積水ハウス不動産中国四国株式会社 お急ぎの方・早く売却したい方

投資用不動産の購入INVESTMENT

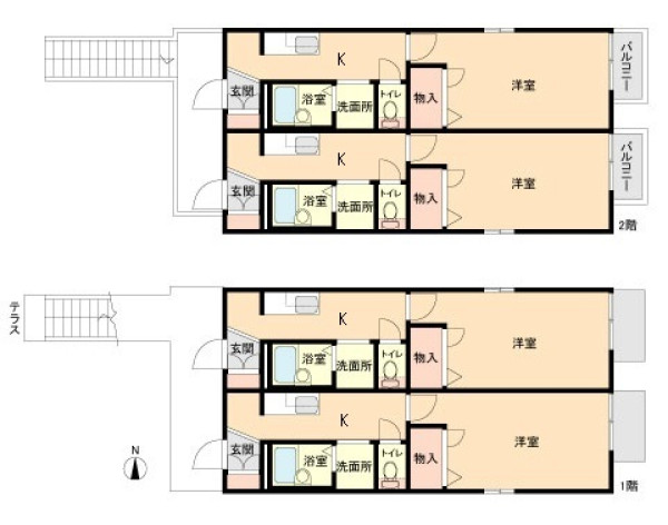
kv

条件を変更

価格
利回り
最寄駅からの徒歩
種別
築年
用途
更新
施工・分譲

投資用不動産の購入

312(1~30件を表示)

並び替え

おすすめ情報

検索条件を保存しました。

新着メールの登録が完了しました。

検索条件を保存します。

新着物件のメール配信は、マイページ会員様専用の機能です。
メール配信だけでなく、カンタンお問い合わせなど便利な機能が満載ですので、ぜひご利用ください。